Bottesford New Homes . if you’re looking for new homes in bottesford, leicestershire, we have elegant 2 bedroom and 3 bedroom houses perfect for first. new build homes in bottesford, leicestershire. learn more about elmley, a 3 bedroom home available at our meadows view development in bottesford. Make your new home a miller home! find the latest new build homes & developments for sale in bottesford, leicestershire with the uk's most user. With its rolling countryside and fairytale castle, few places in the east. new homes for sale in bottesford, leicestershire from savills, world leading estate agents.
from www.grimsbytelegraph.co.uk
if you’re looking for new homes in bottesford, leicestershire, we have elegant 2 bedroom and 3 bedroom houses perfect for first. learn more about elmley, a 3 bedroom home available at our meadows view development in bottesford. Make your new home a miller home! find the latest new build homes & developments for sale in bottesford, leicestershire with the uk's most user. new build homes in bottesford, leicestershire. new homes for sale in bottesford, leicestershire from savills, world leading estate agents. With its rolling countryside and fairytale castle, few places in the east.
Controversial Bottesford 200 homes plan approved but no decision on if developer will pay over
Bottesford New Homes Make your new home a miller home! new build homes in bottesford, leicestershire. if you’re looking for new homes in bottesford, leicestershire, we have elegant 2 bedroom and 3 bedroom houses perfect for first. find the latest new build homes & developments for sale in bottesford, leicestershire with the uk's most user. new homes for sale in bottesford, leicestershire from savills, world leading estate agents. Make your new home a miller home! With its rolling countryside and fairytale castle, few places in the east. learn more about elmley, a 3 bedroom home available at our meadows view development in bottesford.
From www.cairnsheritagehomes.co.uk
Bottesford, Leics Cairns Heritage Homes Bottesford New Homes learn more about elmley, a 3 bedroom home available at our meadows view development in bottesford. if you’re looking for new homes in bottesford, leicestershire, we have elegant 2 bedroom and 3 bedroom houses perfect for first. new build homes in bottesford, leicestershire. find the latest new build homes & developments for sale in bottesford, leicestershire. Bottesford New Homes.
From www.youtube.com
Miller Homes Meadows View, Bottesford, Nottinghamshire CGI Development Tour YouTube Bottesford New Homes find the latest new build homes & developments for sale in bottesford, leicestershire with the uk's most user. Make your new home a miller home! new homes for sale in bottesford, leicestershire from savills, world leading estate agents. With its rolling countryside and fairytale castle, few places in the east. learn more about elmley, a 3 bedroom. Bottesford New Homes.
From www.zoopla.co.uk
New home, 4 bed detached house for sale in Grantham Road, Bottesford, Nottingham NG13 Zoopla Bottesford New Homes if you’re looking for new homes in bottesford, leicestershire, we have elegant 2 bedroom and 3 bedroom houses perfect for first. Make your new home a miller home! find the latest new build homes & developments for sale in bottesford, leicestershire with the uk's most user. new homes for sale in bottesford, leicestershire from savills, world leading. Bottesford New Homes.
From www.propertywire.com
Final homes for sale at Bottesford development PropertyWire Bottesford New Homes new build homes in bottesford, leicestershire. new homes for sale in bottesford, leicestershire from savills, world leading estate agents. learn more about elmley, a 3 bedroom home available at our meadows view development in bottesford. Make your new home a miller home! find the latest new build homes & developments for sale in bottesford, leicestershire with. Bottesford New Homes.
From www.bottesfordhistory.org.uk
Not Chapter 3, part 4 High Street and Albert Street New contributions, Read it Bottesford New Homes Make your new home a miller home! if you’re looking for new homes in bottesford, leicestershire, we have elegant 2 bedroom and 3 bedroom houses perfect for first. find the latest new build homes & developments for sale in bottesford, leicestershire with the uk's most user. new build homes in bottesford, leicestershire. new homes for sale. Bottesford New Homes.
From www.cairnsheritagehomes.co.uk
Normanton Court, Bottesford Cairns Heritage Homes Bottesford New Homes if you’re looking for new homes in bottesford, leicestershire, we have elegant 2 bedroom and 3 bedroom houses perfect for first. find the latest new build homes & developments for sale in bottesford, leicestershire with the uk's most user. new homes for sale in bottesford, leicestershire from savills, world leading estate agents. new build homes in. Bottesford New Homes.
From www.bottesfordhistory.org.uk
Developing Bottesford New contributions, Environment, Out and About Bottesford Living History Bottesford New Homes new build homes in bottesford, leicestershire. find the latest new build homes & developments for sale in bottesford, leicestershire with the uk's most user. if you’re looking for new homes in bottesford, leicestershire, we have elegant 2 bedroom and 3 bedroom houses perfect for first. new homes for sale in bottesford, leicestershire from savills, world leading. Bottesford New Homes.
From www.bottesfordhistory.org.uk
Developing Bottesford New contributions, Environment, Out and About Bottesford Living History Bottesford New Homes if you’re looking for new homes in bottesford, leicestershire, we have elegant 2 bedroom and 3 bedroom houses perfect for first. Make your new home a miller home! new homes for sale in bottesford, leicestershire from savills, world leading estate agents. learn more about elmley, a 3 bedroom home available at our meadows view development in bottesford.. Bottesford New Homes.
From www.newarkadvertiser.co.uk
Couple in their 80s enjoying newbuild home in Bottesford Bottesford New Homes new build homes in bottesford, leicestershire. learn more about elmley, a 3 bedroom home available at our meadows view development in bottesford. With its rolling countryside and fairytale castle, few places in the east. find the latest new build homes & developments for sale in bottesford, leicestershire with the uk's most user. Make your new home a. Bottesford New Homes.
From www.cairnsheritagehomes.co.uk
Bottesford, Leics Cairns Heritage Homes Bottesford New Homes new build homes in bottesford, leicestershire. With its rolling countryside and fairytale castle, few places in the east. Make your new home a miller home! new homes for sale in bottesford, leicestershire from savills, world leading estate agents. learn more about elmley, a 3 bedroom home available at our meadows view development in bottesford. if you’re. Bottesford New Homes.
From www.cairnsheritagehomes.co.uk
Bottesford, Leics Cairns Heritage Homes Bottesford New Homes new build homes in bottesford, leicestershire. With its rolling countryside and fairytale castle, few places in the east. find the latest new build homes & developments for sale in bottesford, leicestershire with the uk's most user. if you’re looking for new homes in bottesford, leicestershire, we have elegant 2 bedroom and 3 bedroom houses perfect for first.. Bottesford New Homes.
From www.grimsbytelegraph.co.uk
See inside this surprisingly spacious Bottesford flat which could be yours for a bargain price Bottesford New Homes if you’re looking for new homes in bottesford, leicestershire, we have elegant 2 bedroom and 3 bedroom houses perfect for first. new build homes in bottesford, leicestershire. Make your new home a miller home! With its rolling countryside and fairytale castle, few places in the east. new homes for sale in bottesford, leicestershire from savills, world leading. Bottesford New Homes.
From www.cairnsheritagehomes.co.uk
Bottesford, Leics Cairns Heritage Homes Bottesford New Homes With its rolling countryside and fairytale castle, few places in the east. if you’re looking for new homes in bottesford, leicestershire, we have elegant 2 bedroom and 3 bedroom houses perfect for first. Make your new home a miller home! new build homes in bottesford, leicestershire. learn more about elmley, a 3 bedroom home available at our. Bottesford New Homes.
From www.onthemarket.com
Easthorpe Road, Bottesford 4 bed detached house for sale £550,000 Bottesford New Homes new homes for sale in bottesford, leicestershire from savills, world leading estate agents. if you’re looking for new homes in bottesford, leicestershire, we have elegant 2 bedroom and 3 bedroom houses perfect for first. new build homes in bottesford, leicestershire. learn more about elmley, a 3 bedroom home available at our meadows view development in bottesford.. Bottesford New Homes.
From www.meltontimes.co.uk
Concerns over major Bottesford housing plan Melton Times Bottesford New Homes find the latest new build homes & developments for sale in bottesford, leicestershire with the uk's most user. new build homes in bottesford, leicestershire. With its rolling countryside and fairytale castle, few places in the east. new homes for sale in bottesford, leicestershire from savills, world leading estate agents. learn more about elmley, a 3 bedroom. Bottesford New Homes.
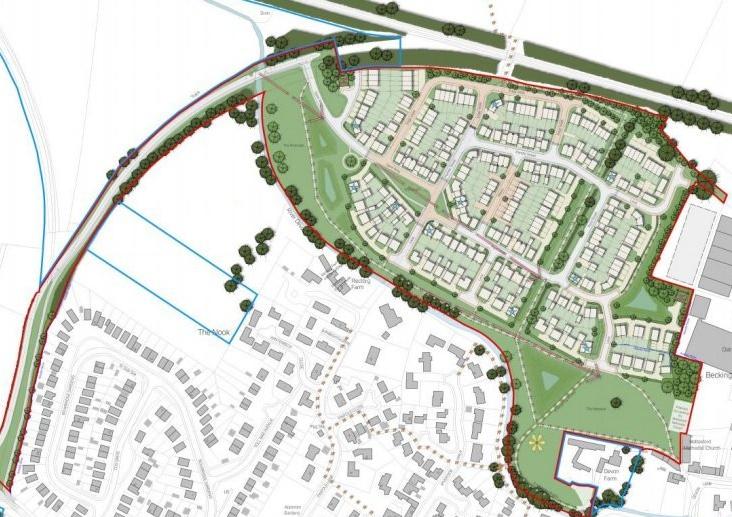
From planit-x.co.uk
Rectory Farm, Bottesford Planit X Bottesford New Homes learn more about elmley, a 3 bedroom home available at our meadows view development in bottesford. find the latest new build homes & developments for sale in bottesford, leicestershire with the uk's most user. Make your new home a miller home! if you’re looking for new homes in bottesford, leicestershire, we have elegant 2 bedroom and 3. Bottesford New Homes.
From www.cairnsheritagehomes.co.uk
Normanton Court, Bottesford Cairns Heritage Homes Bottesford New Homes find the latest new build homes & developments for sale in bottesford, leicestershire with the uk's most user. new homes for sale in bottesford, leicestershire from savills, world leading estate agents. if you’re looking for new homes in bottesford, leicestershire, we have elegant 2 bedroom and 3 bedroom houses perfect for first. learn more about elmley,. Bottesford New Homes.
From www.xlarchitects.co.uk
House Alterations, Bottesford XL Architects LLP Bottesford New Homes if you’re looking for new homes in bottesford, leicestershire, we have elegant 2 bedroom and 3 bedroom houses perfect for first. With its rolling countryside and fairytale castle, few places in the east. new homes for sale in bottesford, leicestershire from savills, world leading estate agents. learn more about elmley, a 3 bedroom home available at our. Bottesford New Homes.